Woonoppervlakte
Circa 120 m²
Perceeloppervlakte
Circa 416 m²
Bouwjaar
Gebouwd in 1973
Aantal kamers
4 kamers (3 slaapkamers)

Liezenveenweg 31

7975 AX, Uffelte (Drenthe)

In een gemoedelijk hofje, waar het leven nog echt dorps aanvoelt en kinderen veilig op straat kunnen spelen, staat deze vrijstaande woning met grote carport, vrijstaande schuur en drie slaapkamers.
De woning is degelijk gebouwd en ligt in het landelijke Uffelte, te midden van rust, ruimte en natuur. Hier geniet je van een heerlijke tuin met volop privacy en talloze mogelijkheden om jouw woonwensen waar te maken.

Omgeven door prachtige natuurgebieden en met alle voorzieningen dichtbij. Uffelte beschikt over een basisschool, een dorpshuis, diverse sportverenigingen en een aantal gezellige eetgelegenheden. Voor de dagelijkse boodschappen rijd je in slechts zeven minuten naar Havelte.

Bouwjaar: 1973
Woonoppervlak: 120 m²
Overig inpandig: 15 m²
Inhoud: 458 m³
Kaveloppervlak: 416 m²
Slaapkamers: 3

Begane grond:
De voordeur aan de zijkant van de woning brengt je in een ruime hal met toilet (met fonteintje), meterkast, trapopgang en een badkamer voorzien van wastafelmeubel, designradiator en een moderne inloopdouche met glazen deur.Rechtdoor stap je de lichte L-vormige woonkamer binnen. Dankzij de grote ramen valt er veel daglicht binnen, terwijl de warme parketvloer zorgt voor een huiselijke sfeer. De halfopen keuken heeft een vloerverwarming, plavuizen vloer en een gezellige bar. De keuken in hoekopstelling biedt veel bergruimte en is uitgerust met diverse inbouwapparatuur. Vanuit het raam boven de spoelbak kijk je uit over de achtertuin.
Onder de keuken bevindt zich nog een echte kelder (15 m²) met daglicht – perfect voor voorraad of wijn. Aansluitend vind je een royale bijkeuken/berging met de CV-opstelling, wasmachineaansluiting, extra keukenblok met wasbak, vaste kast, drie ramen en een deur naar het terras.

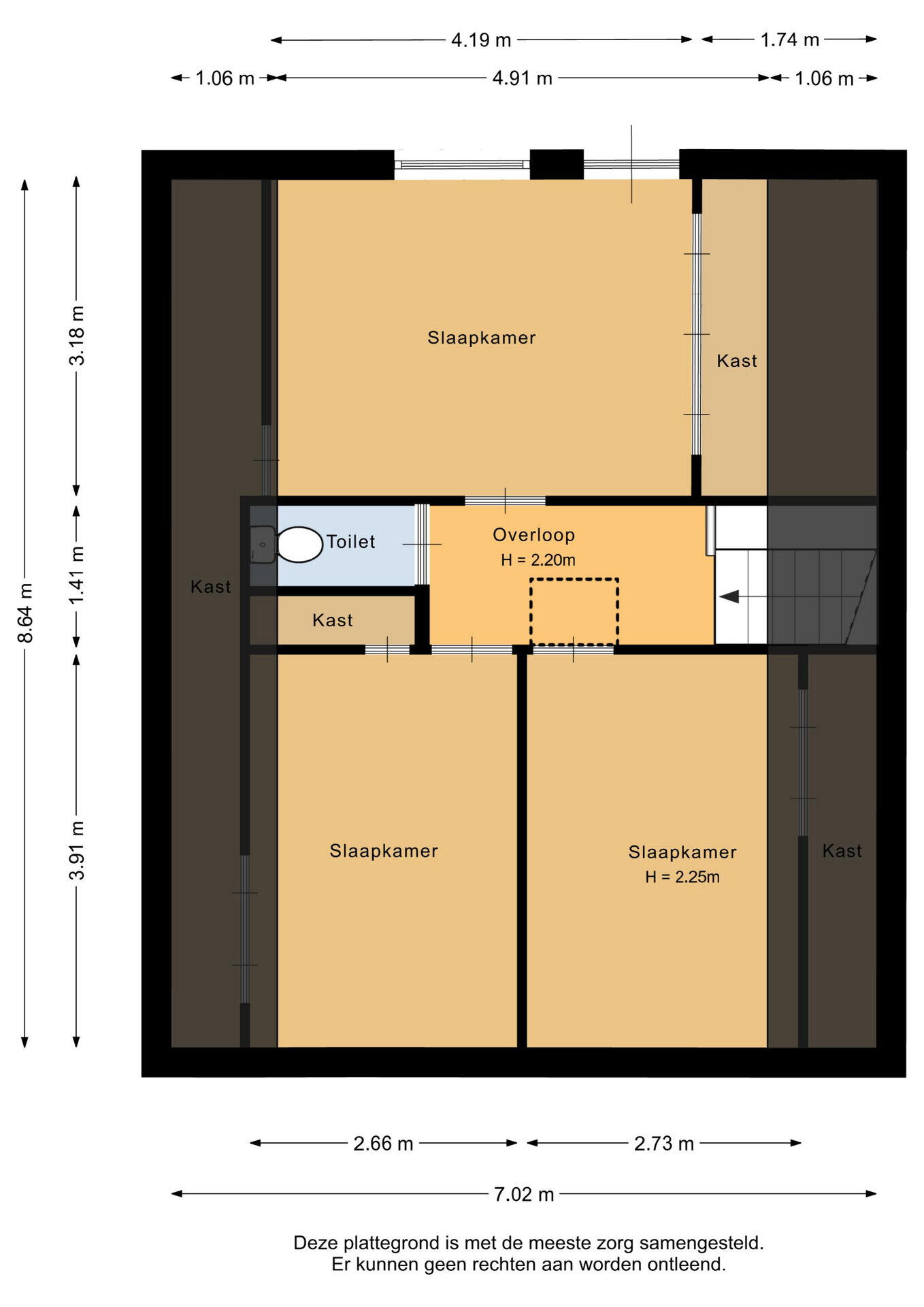
Verdieping:
Via de trap in de hal kom je op de overloop, die toegang biedt tot drie slaapkamers en een tweede toilet.
De hoofdslaapkamer ligt aan de achterzijde en strekt zich uit over de volledige breedte van de woning. Deze kamer heeft drie vaste kasten en een deur naar het platte dak.
De andere twee slaapkamers bevinden zich aan de voorzijde, waarvan één met een vaste kast. Onder de schuine kap is slim gebruikgemaakt van de ruimte: via luikjes in het knieschot heb je extra bergruimte.

Tuin:
De voortuin is verzorgd aangelegd met gras en een border vol groen. De oprit leidt naar de grote carport met aangrenzende schuur en achterom. Dankzij de lichtkoepels in zowel carport als schuur is er veel natuurlijk licht.
De fraaie achtertuin, gelegen op het zuiden, biedt volop privacy en rust. Er zijn twee keurig bestrate terrassen waar je heerlijk kunt zitten, zowel in de zon als in de schaduw. De borders met boompjes, struiken en bloeiende planten zorgen voor kleur en een natuurlijke afscheiding tussen de zitplekken.

Bijzonderheden:
* Nette en degelijk gebouwde woning
* Rustige ligging in een hofje
* Veel privacy in de achtertuin
* Schuur met carport
* Bovenverdieping voorzien van dubbel glas

Omgeving:
Uffelte is een levendig dorp met een basisschool, naschoolse opvang, dorpshuis met leuke activiteiten, diverse verenigingen (voetbal, badminton, popkoor, korfbal, biljart) en sportieve mogelijkheden zoals fitness. Ook kun je er bridgen of gezellig uit eten bij één van de lokale eetgelegenheden.

Het dorp ligt midden in de Drentse natuur, omringd door bossen en heidevelden — perfect voor wandelen, fietsen of paardrijden. De ligging is uitstekend ten opzichte van de A28 en A32, en de 18-holes golfbaan van Havelte ligt op een steenworp afstand.
Meppel en Steenwijk bereik je binnen circa 10 minuten met de auto, en er is een goede busverbinding richting Dieverbrug, Assen en Meppel.

Uffelte, onderdeel van de gemeente Westerveld, telt ongeveer 1.400 inwoners en heeft de charme van een echt Drents esdorp met karakteristieke Saksische boerderijen. Rond het dorp liggen prachtige natuurgebieden zoals het Uffelterzand, het Uffelter Binnenveld en het landgoed Rheebruggen – stuk voor stuk plekken waar rust en natuur elkaar ontmoeten.

Plattegronden

Overdracht

Vraagprijs
€ 425.000 k.k.
Status
Verkocht
Aanvaarding
In overleg

Bouw

Object type
Eengezinswoning, vrijstaande woning
Soort bouw
Bestaande bouw
Bouwjaar
1973
Soort dak
Zadeldak bedekt met pannen

Oppervlakte en inhoud

Woonoppervlakte
120 m²
Perceeloppervlakte
416 m²
Inhoud
458 m³
Overige inpandige ruimte
15 m²
Externe bergruimte
14 m²
Gebouwgeb. buitenruimte
23 m²

Indeling

Aantal kamers
4 kamers (3 slaapkamers)
Aantal badkamers
1 badkamer
Badkamervoorzieningen
Wastafelmeubel, inloopdouche
Aantal woonlagen
2 woonlagen
Voorzieningen
Mechanische ventilatie, buitenzonwering, glasvezel kabel

Energie

Energielabel
D
Energielabel registratie
25-09-2025
Isolatie
Dakisolatie, grotendeels dubbelglas
Verwarming
Cv-ketel, vloerverwarming gedeeltelijk
Warm water
Cv-ketel
Cv ketel
Hr combiketel gas gestookt uit 2012 (eigendom)

Buitenruimte

Ligging
Aan rustige weg, beschutte ligging, in bosrijke omgeving
Tuin
Tuin rondom
ligging tuin
En bereikbaar via achterom

Bergruimte

Schuur / berging
Vrijstaand steen
Voorzieningen
Voorzien van elektra

Garage

Soort garage
Geen garage

Parkeergelegenheid

Soort parkeergelegenheid
Openbaar parkeren, op eigen terrein

Energieverbruik in Uffelte

Energielabel deze woning

Energielabel D

Publicatie energielabel: 25-09-2025

Stroomverbruik per jaar

3890 kWh

(Gemiddelde vrijstaande woning in Uffelte)

Gasverbruik per jaar

1870 m³

(Gemiddelde vrijstaande woning in Uffelte)

* Cijfers zijn afkomstig van het CBS en bedoeld als indicatie en kunnen verschillen voor deze woning

Indicatie hypotheeklasten

Eigen inleg:
Spaargeld / overwaarde

Rente:
Laagste 10-jaars rente

Laagste 10-jaars rente

2,98% - Centraal Beheer Groen... - NHG


3,25% - Centraal Beheer Groen... - 80%

Laagste 20-jaars rente

3,29% - Centraal Beheer Groen... - NHG


3,52% - Centraal Beheer Groen... - 80%

Laagste 30-jaars rente

3,41% - Centraal Beheer Groen... - NHG


3,74% - Centraal Beheer Groen... - 80%


Hypotheek:

Bruto maandlasten: € 0 p/m

Netto maandlasten: € 0 p/m

Hoe berekenen we dit?

Het rentepercentage is gebaseerd op de laagste 10 jaars vaste rente voor één hypotheekdeel. De vermelde rente (3.25% zonder NHG) is gecontroleerd op 06-01-2026. Deze berekening is gebaseerd op een annuïteitenhypotheek die volledig wordt afgelost, waarbij de maandlasten gedurende de gehele looptijd gelijk blijven. De werkelijke rente en netto maandlasten kunnen variëren, afhankelijk van uw persoonlijke situatie en de hypotheekverstrekker. Raadpleeg een financieel adviseur voor een nauwkeurige berekening en advies. Aan deze berekening kunnen geen rechten worden ontleend; het dient enkel als indicatie.

Documentatie

Zonnegrenzen bekijken

Op de kaart

Inwoners in Uffelte

Cijfers voor postcodegebied 7975

Totaal aantal inwoners
1440 inwoners
Mannen
49%
Vrouwen
51%

Inwoners in Uffelte

Cijfers voor postcodegebied 7975

tot 15 jaar
14%
15 tot 25 jaar
11%
25 tot 35 jaar
17%
45 tot 65 jaar
33%
65 en ouder
25%

Huishoudens in Uffelte

Cijfers voor postcodegebied 7975

Eenpersoons zonder kinderen
27%
Meerpersoons zonder kinderen
40%
Huishoudens zonder kinderen
67%

Huishoudens in Uffelte

Cijfers voor postcodegebied 7975

Huishoudens met één kind
5%
Huishoudens met meerdere kinderen
29%
Huishoudens met kinderen
34%

Woningen in Uffelte

Cijfers voor postcodegebied 7975

Woningen voor 1945
21%
Woningen tussen 1945 en 1965
15%
Woningen tussen 1965 en 1975
16%
Woningen tussen 1975 en 1985
23%
Woningen tussen 1985 en 1995
13%

Woningen in Uffelte

Cijfers voor postcodegebied 7975

Woningen tussen 1995 en 2005
7%
Woningen tussen 2005 en 2015
5%
Woningen na 2015
1%
Huurwoningen
20%
Koopwoningen
80%

Overige in Uffelte

Cijfers voor postcodegebied 7975

Gemiddelde WOZ waarde
€ 284.000,-
Personen onder de 65 met uitkering
Niet beschikbaar

Overige in Uffelte

Cijfers voor postcodegebied 7975

Adressen per km²
139
Stedelijkheid (schaal 1 op 5)
20%
Postcode kaart 7975 Gemeente kaart westerveld

Korte feiten over Uffelte

Uffelte is een esdorp in de gemeente Westerveld, in de Nederlandse provincie Drenthe. In 2023 had het dorp 1.440 inwoners. Onder het dorp valt ook de buurtschap Holtinge.

Zandbergen Makelaardij

Indien u vragen heeft of u wilt een bezichtiging inplannen, dan kunt u gebruik maken van het formulier hiernaast. Er zal daarna op korte termijn contact met u worden opgenomen.

Over ons

Een huis kopen of verkopen is geen alledaagse gebeurtenis. Het vraagt om goede voorbereiding en begeleiding. Bij Zandbergen Makelaardij sta je er niet alleen voor. Ons team – bestaande uit Gerben (NVM Register Makelaar), Rik (NVM Makelaar), Annemieke (binnendienst) en Martine (Assistent Makelaar) – staat voor je klaar om je met vakkennis en enthousiasme te helpen.

Wij zijn lokaal geworteld in de regio Meppel, Westerveld en omgeving. Je komt ons tegen bij sportverenigingen, op het voetbalveld of tijdens een wandeling door de mooie natuurgebieden in Drenthe en Overijssel. Ook op maatschappelijk vlak zijn we actief: we ondersteunen lokale sportclubs en werken graag samen met ondernemers uit de regio.

Zandbergen Makelaardij is opgericht in 2004. Sindsdien hebben we talloze mensen geholpen bij het vinden of verkopen van hun woning. Onze kennis blijft actueel dankzij regelmatige bijscholing. Bovendien zijn we lid van de NVM, waarbij Gerben Zandbergen een leidende rol vervult als voorzitter van de afdeling Drenthe.

Ben je op zoek naar een makelaar die de regio kent, betrokken is én staat voor kwaliteit? We maken graag kennis met je!

Over ons
Reviews Zandbergen Makelaardij

Liezenveenweg 31, Uffelte

€ 425.000 k.k. - Verkocht

Helaas, deze woning is verkocht!

Net te laat, deze woning is al verkocht. Laat een zoekopdracht bij ons achter zodat wij u direct kunnen helpen wanneer er nieuw aanbod beschikbaar komt.